资料下载
DATA DOWNLOAD
发布时间:2025/12/19
点击次数:117
地表裂缝监测站设置要求:依裂缝走向布设,确保监测数据真实且具代表性【型号推荐:TH-LFZ1,物联网一体化设备,云境天合支持定制服务】在地质灾害防治与工程安全监测中,地表裂缝的动态变化是评估结构稳定性的核心依据,其监测数据的真实性与代表性直接关系到风险预警的准确性。地表裂缝监测站的设置需严格遵循科学布设原则,首要要求是沿裂缝走向精准定位监测点位——通过地质勘察与裂缝形态分析,在裂缝的起始端、转折点、扩展活跃区及末端等关键位置部署传感器,确保监测范围覆盖裂缝全生命周期演变过程。同时,需结合裂缝周边地质条件、地形起伏及环境干扰因素,优化传感器安装角度与固定方式,避免因植被遮挡、地表沉降或人为活动导致数据失真。此外,监测站应采用多传感器协同监测模式,融合位移、应变、倾角等参数,形成对裂缝三维变化的立体感知,进一步提升数据代表性。通过科学布设与多参数融合,地表裂缝监测站方能精准捕捉裂缝动态,为灾害预警与工程加固提供可靠依据。

一、产品简介
本产品广泛应用于地质灾害、岩土工程、建筑工程、交通、水利、市政等多个监测领域,特别适用于地表裂缝、卸荷裂隙、房屋或结构裂缝等相对位移的精确监测。
在地质灾害监测中,能够实时捕捉地表裂缝的微小变化,为滑坡、崩塌等灾害预警提供关键数据;在岩土工程中,可有效监测卸荷裂隙的发展趋势,确保工程安全;
在建筑工程领域,能够精准检测房屋或结构裂缝的位移情况,为建筑物的健康诊断和维护提供科学依据;
在交通、水利和市政工程中,同样能够发挥重要作用,确保基础设施的长期稳定运行。
通过高精度的监测数据,帮助用户及时采取应对措施,降低风险,保障工程和人员安全。
二、技术参数
| 量程 | 0-1000mm |
| 精度 | ±0.02%F.S |
| 响应时间 | 1s |
| 外壳材质 | ABS |
| 供电电压 | 12-24VDC(0.4W@12V) |
| 通讯方式 | modbus-485 |
| 太阳能板功率 | 8W |
| 太阳能板标准工作电压 | DC5V |
| 内置锂电池容量 | 5000mAh |
| 支架材质 | 不锈钢 |
| 采集器 | 带3年流量 |
| 数据传输 | 标配每10分钟传输一次,支持定制 |
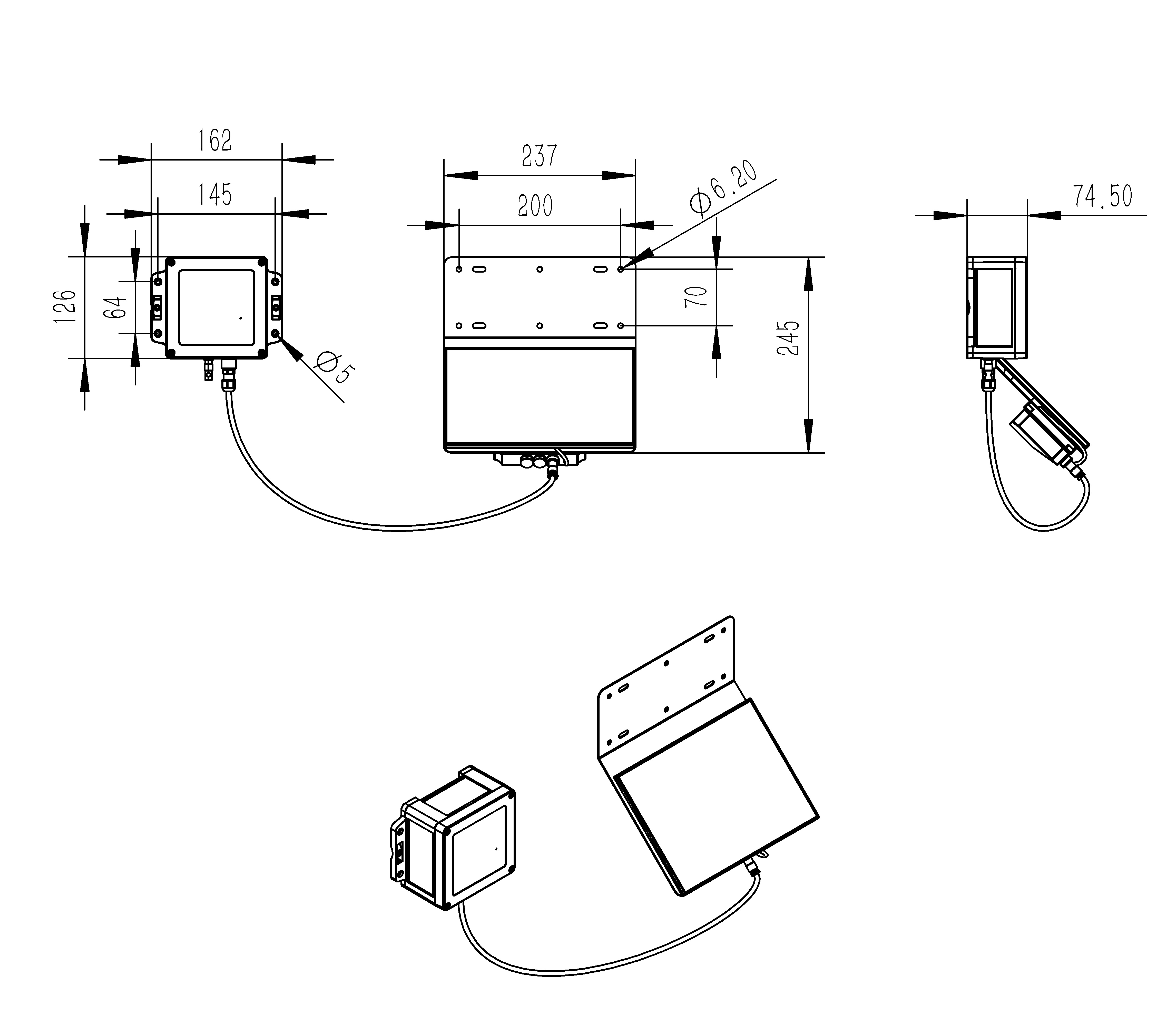
三、产品尺寸图
